Extranet client
fr

Votre recherche

Colmar (68000)

568 m²

Au cœur du nouveau site commercial L’AGORA, découvrez une cellule commerciale neuve d’une surface totale de 56

6 154 € / mois HT - HC*
Ref : LELCOAGORAB01
A propos de ce bien
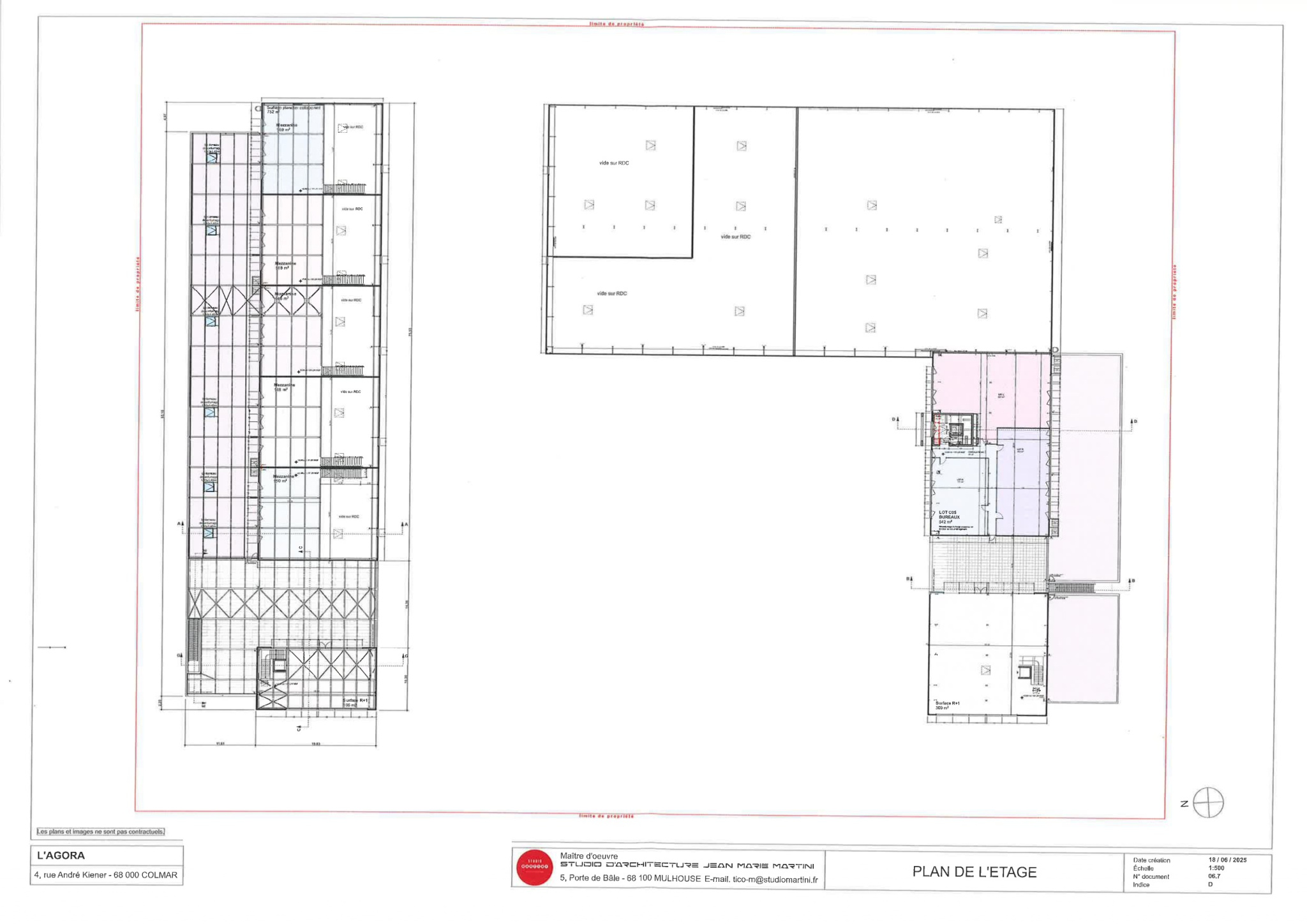
  1. Au cœur du nouveau site commercial L’AGORA, découvrez une cellule commerciale neuve d’une surface totale de 568 m², idéalement conçue pour accueillir tout type d’activité, sans restriction d’usage, et particulièrement adaptée à la restauration - Description du lot : Surface totale : 568 m² - Locaux neufs, récemment livrés, issus d’un programme de dernière génération.
  2. Le site L’AGORA : Ensemble commercial récent, à l’architecture contemporaine avec Plus de 300 places de stationnement pour la clientèle et le personne, Mixité d’activités déjà en place, comprenant notamment : une boulangerie, un institut de beauté / spa, l’implantation prochaine d’un laboratoire d’analyses médicales. - Cette diversité garantit un flux régulier de clientèle et une excellente complémentarité entre les activités. - Localisation stratégique - Situé en Zone Industrielle Nord de Colmar - Environnement dynamique à fort trafic automobile - Accès rapide à l’autoroute - Toutes commodités à proximité immédiate -Contactez Emmanuel LIEPPE - AGENCE DE L'ILL - Sélestat - 06 52 53 86 57

Descriptif de ce bien
Général
Type de transac Local commercial
Code postal 68000
Nombre de niveaux 1
Ascenseur 1
Vue Vosges
Superficie (m²) 568
Détails
Année de construction 2025
Vitrine oui
Composition
Rez de chaussée
accueil 447 m²

Etage 1
bureau 148 m²

Financier
Loyer HT 6 154 € / mois
Honoraires HT charge locataire 13 293 €
Dont état des lieux Non renseigné
Dépot de garantie Non renseigné
Bail commercial
Energie
DPE GES
Autour du bien
  • Commerces et santé
  • Loisirs
  • Ecoles
  • Transports
  • Pratique
Contacter pour ce bien
L'agence
Téléphone 03 88 92 05 86
Adresse
111 route de Strasbourg 67600 Sélestat

* Champ obligatoire

Les informations recueillies sur ce formulaire sont enregistrées dans un fichier informatisé par La Boite Immo agissant comme Sous-traitant du traitement pour la gestion de la clientèle/prospects de l'Agence / du Réseau qui reste Responsable du Traitement de vos Données personnelles. La base légale du traitement repose sur l'intérêt légitime de l'Agence / du Réseau. Elles sont conservées jusqu'à demande de suppression et sont destinées à l'Agence / au Réseau. Conformément à la loi « informatique et libertés », vous disposez des droits d’accès, de rectification, d’effacement, d’opposition, de limitation et de portabilité de vos données. Vous pouvez retirer votre consentement à tout moment en contactant directement l’Agence / Le Réseau. Consultez le site https://cnil.fr/fr pour plus d’informations sur vos droits. Si vous estimez, après avoir contacté l'Agence / le Réseau, que vos droits « Informatique et Libertés » ne sont pas respectés, vous pouvez adresser une réclamation à la CNIL. Nous vous informons de l’existence de la liste d'opposition au démarchage téléphonique « Bloctel », sur laquelle vous pouvez vous inscrire ici : https://www.bloctel.gouv.fr Dans le cadre de la protection des Données personnelles, nous vous invitons à ne pas inscrire de Données sensibles dans le champ de saisie libre.
Ce site est protégé par reCAPTCHA, les Politiques de Confidentialité et les Conditions d'Utilisation de Google s'appliquent.

Découvrir nos outils